DomAndorra

Exclusivo piso para comprar en el centro de Andorra la Vella

Ref. :

6216

1.080.000,00 

Superficie

108

Habitaciones

3

Baños

2

Tipo de propiedad

Piso

Subtipo de propiedad

Apartamento

Pais

Andorra

Provincia

Andorra la Vella

Población

Andorra la Vella

Equipamiento

Aire Acondicionado, Armarios empotrados, Ascensor, Balcón, Calefacción, Doble vidrio, Equipaciones deportivas, Parking, Parking cubierto, Soleado, Transporte público cerca, Trastero, Vistas ciudad

Comparte esta propiedad

Descripción

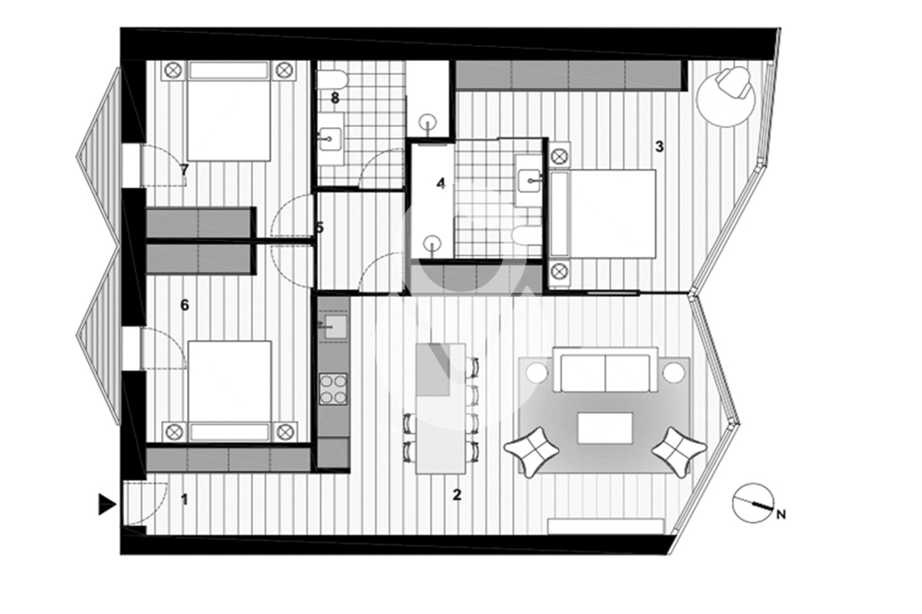
Descubre este exclusivo piso en venta en el corazón de Andorra la Vella, una oportunidad única para disfrutar de un estilo de vida cómodo y moderno. Con una superficie útil de 95,02 m², esta vivienda destaca por su distribución funcional y su luminosidad natural.

El piso cuenta con 3 habitaciones, incluyendo una suite privada que ofrece intimidad y confort y dos habitaciones dobles ideales para familiares o invitados. Con 2 baños completos, el espacio asegura comodidad para toda la familia.

La zona de salón-comedor es amplia y abierta, integrada con la cocina, creando un ambiente acogedor y perfectamente adaptado para momentos de reunión. Además dispone de una terraza de 2,6 m², un pequeño refugio para disfrutar del aire fresco y las vistas de la ciudad.

Incluye también una plaza de parking, una comodidad imprescindible en una céntrica ubicación. No dejes pasar esta oportunidad de vivir en el centro de Andorra la Vella, con todas las comodidades al alcance.

Información

Ref. :

6216

También pueden interesarte las siguientes propiedades