DomAndorra

Piso de 3 habitaciones para comprar en La Pleta de Soldeu

Ref. :

6117

1,00 

Superficie

77

Habitaciones

3

Baños

1

Tipo de propiedad

Piso

Subtipo de propiedad

Apartamento

Pais

Andorra

Provincia

Canillo

Población

Soldeu

Equipamiento

Amueblado, Armarios empotrados, Ascensor, Parking, Soleado, Transporte público cerca, Trastero, Vistas a la montaña, Zona verde

Comparte esta propiedad

Descripción

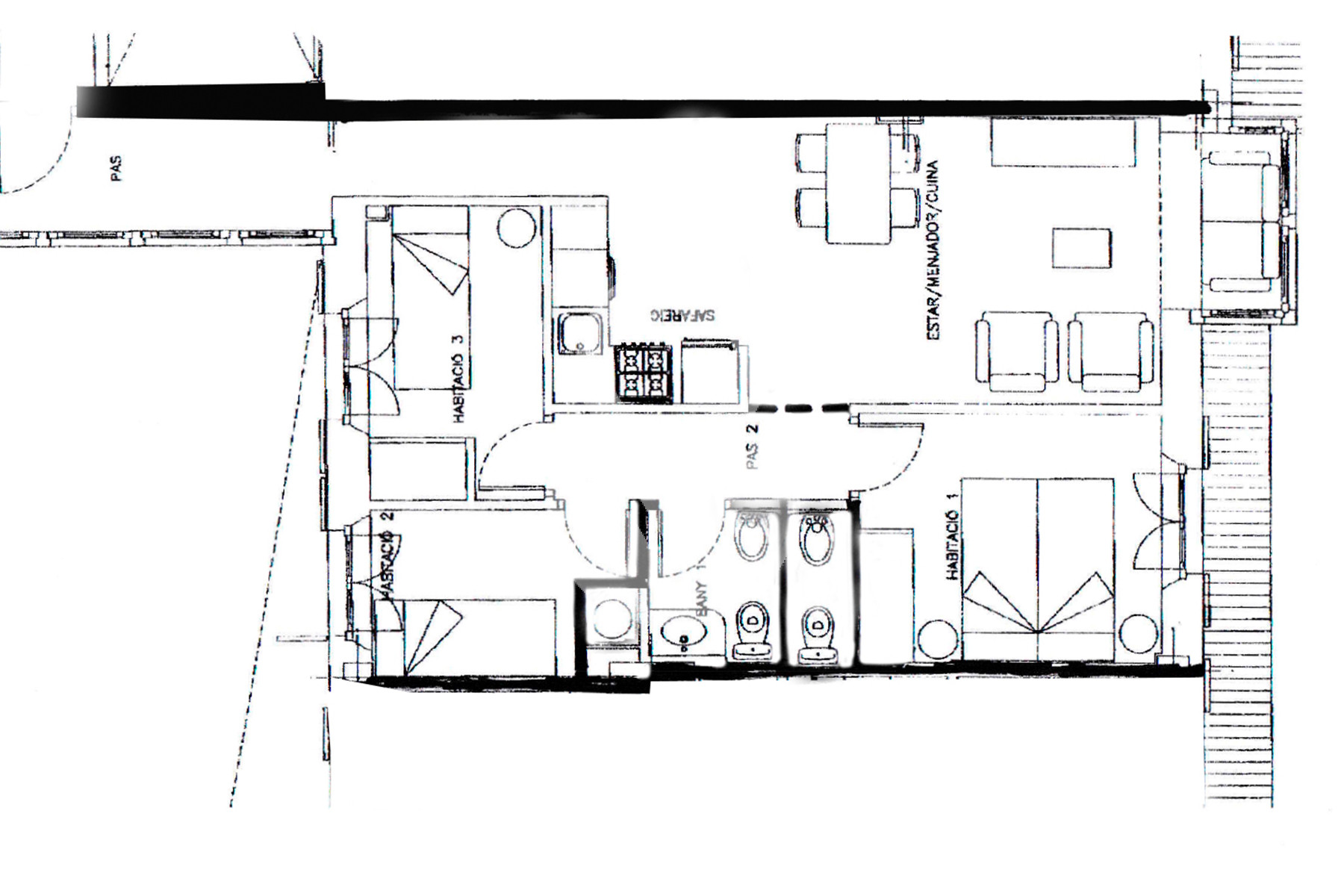
Descubre este encantador piso de 77,51 m² situado en Soldeu, perfecto para los amantes de la naturaleza y el esquí. Esta vivienda destaca por su distribución funcional que combina el salón, el comedor y la cocina en un solo ambiente, iluminada por la luz natural que entra a chorro y con vistas impresionantes. En la entrada del piso, un práctico recibidor para poder librarte de bolsas, y ropa de abrigo.

El piso cuenta con tres habitaciones exteriores: una doble y dos individuales, amplias, ideales para familias o para alojar a amigos. Además, ofrece un baño completo con ducha y un aseo para tu comodidad.

Situado a tan sólo 5 minutos a pie del centro del pueblo y del telecabina que te lleva directamente a la estación de esquí de Soldeu, este piso es una oportunidad inmejorable para los amantes del esquí y la montaña.

Incluye un trastero para guardar el equipamiento de esquí, bici, maletas… y una plaza de parking en el edificio, ofreciéndote así toda la comodidad que necesitas.

No pierdas la oportunidad de hacer de este piso tu refugio en las montañas, donde el confort y la naturaleza se encuentran en perfecta armonía. ¡Contáctanos para más información y visita!

Información

Ref. :

6117